
دھاتی سیکیورٹی باڑیں ایک پیشہ ور چینی اسٹیل ڈھانچے تیار کرنے والے لیویوان کے ذریعہ تیار کی جاتی ہیں۔ فیکٹری براہ راست فروخت کی ضمانت معیار کی ضمانت ہے۔ وہ دیواروں ، باڑ اور دیواروں کے لئے حفاظتی آلات کے طور پر بڑے پیمانے پر استعمال ہوتے ہیں۔ ہم آپ کی انکوائری کا خیرمقدم کرتے ہیں!
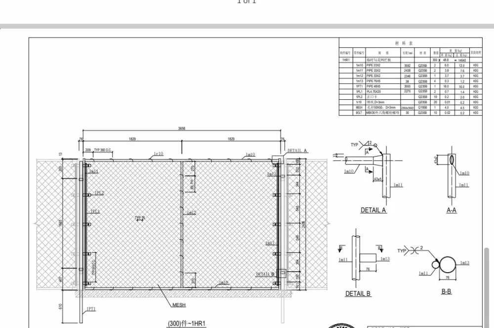
لیویوان کے دھاتی سیکیورٹی باڑ کے بنیادی ساختی اجزاء میں فریم ، طول بلد بیم ، کنیکٹر اور سپورٹ پوسٹس شامل ہیں۔ فریم بنیادی طور پر مختلف قسم کے دھات کے مواد سے تیار کیا گیا ہے اور انفرادی ڈیزائن کی ضروریات کو پورا کرنے کے لئے مختلف شکلوں میں آتا ہے۔ فریم مواد میں بنیادی طور پر جستی والی اسٹیل شیٹ ، جستی گول پائپ ، جستی مربع پائپ ، اور چین لنک باڑ شامل ہیں۔ یہ مواد ان کی استحکام اور سنکنرن مزاحمت کے لئے منتخب کیے گئے ہیں۔ طول البلد بیم باڑ کے فریموں کے مابین طے شدہ ہیں ، ان کی طاقت اور سختی کو بڑھا دیتے ہیں ، جس سے وہ زیادہ مستحکم اور قابل اعتماد بن جاتے ہیں۔
کنیکٹر کلیدی اجزاء ہیں جو باڑ کو سپورٹ پوسٹوں سے جوڑتے ہیں۔ ہم جستی اسٹیل شیٹ ، جستی گول اسٹیل ، اور جستی پائپ استعمال کرتے ہیں۔ یہ مواد ہوا اور زلزلے کی بہترین مزاحمت پیش کرتے ہیں ، جو استعمال کے دوران ڈھیلنے کو روکتے ہیں اور باڑ کی سلامتی اور استحکام کو یقینی بناتے ہیں۔ سپورٹ پوسٹس باڑ کے بنیادی معاون اجزاء ہیں۔ ہم مقام ، ضروریات اور ماحول کے لحاظ سے متعدد سپورٹ پوسٹس کا استعمال کرسکتے ہیں۔ تاہم ، ان پوسٹوں کے لئے استعمال ہونے والے مواد کو استعمال کے دوران حفاظت کو یقینی بنانے کے ل high اعلی استحکام ، ہوا اور زلزلے کی مزاحمت ، اور استحکام کا ہونا ضروری ہے۔


ہمارے دھاتی سیکیورٹی باڑیں ہٹنے اور دوبارہ قابل استعمال ہیں۔ حفاظت اور ماحولیاتی دوستی کو یقینی بناتے ہوئے ، ان کی اونچائی ، چوڑائی اور کنکشن کے طریقوں کو کسٹمر کی ضروریات اور اطلاق کے منظرناموں کے مطابق ڈیزائن اور تیار کیا جاسکتا ہے۔


ہمارے دھاتی سیکیورٹی باڑ مؤثر طریقے سے تعمیراتی مقامات کو دوسری عمارتوں اور سڑکوں سے الگ کرتے ہیں ، جس سے الگ تھلگ کام کی جگہ پیدا ہوتی ہے۔ انہیں ضرورت کے مطابق جدا اور دوبارہ جوڑ دیا جاسکتا ہے۔
ورکشاپ سے الگ تھلگ جالوں کو عام طور پر صنعتی ورکشاپس میں حفاظتی سامان کے طور پر استعمال کیا جاتا ہے ، بنیادی طور پر کام کے علاقوں کی حد بندی کرنے ، مضر آلات کو الگ تھلگ کرنے اور کارکنوں کی حفاظت کے لئے۔
ہماری مصنوعات کو انڈور کام کے علاقوں کی حفاظت کے لئے انڈور گودام باڑ لگانے کے طور پر بھی استعمال کیا جاسکتا ہے۔ وہ اسٹوریج کی مختلف سہولیات ، جیسے گوداموں ، لاجسٹک مراکز اور فیکٹریوں میں بڑے پیمانے پر استعمال ہوتے ہیں۔
لیویوان دھات کی حفاظت کے باڑ کے لئے عام سائز میں شامل ہیں: 2 میٹر لمبا 1.5 میٹر اونچا ؛ 2.5 میٹر لمبا 2 میٹر اونچا ؛ اور 3 میٹر لمبا 2.5 میٹر اونچا۔ کسٹم سائز دستیاب ہیں۔ اسٹیل مواد میں Q235B ، Q355B ، A36 ، اور A572 شامل ہیں ، جو یورپی اور امریکی معیارات کو پورا کرتے ہیں۔
