
اسٹیل ڈھانچے کے گٹر عمارت کے چھت کے نکاسی آب کے نظام کا ایک اہم جزو ہیں۔ ان کا بنیادی کام چھت سے بارش کا پانی جمع کرنا ، اسے عمودی پائپوں میں بھیجنا ، اور پھر اسے بیرونی نکاسی آب کے نظام میں خارج کرنا ہے ، جس سے اسے براہ راست دیواروں کو ختم کرنے یا بھگونے والی بنیادوں سے روکتا ہے۔ لیویوان کے مصنوع کے ڈیزائن اور تنصیب کی خصوصیات اعلی طاقت اور ہلکے وزن کی طرف سے ہوتی ہے ، جو ہموار نکاسی آب اور غیر معمولی استحکام کو یقینی بناتی ہے۔
اسٹیل ڈھانچے کے گٹر عمارت کے چھت کے نکاسی آب کے نظام کا ایک اہم جزو ہیں۔ ان کا بنیادی کام چھت سے بارش کا پانی جمع کرنا ، اسے عمودی پائپوں میں بھیجنا ، اور پھر اسے بیرونی نکاسی آب کے نظام میں خارج کرنا ہے ، جس سے اسے براہ راست دیواروں کو ختم کرنے یا بھگونے والی بنیادوں سے روکتا ہے۔ لیویوان کے مصنوع کے ڈیزائن اور تنصیب کی خصوصیات اعلی طاقت اور ہلکے وزن کی طرف سے ہوتی ہے ، جو ہموار نکاسی آب اور غیر معمولی استحکام کو یقینی بناتی ہے۔
لیویوان کا اسٹیل ڈھانچہ گٹر سنکنرن مزاحم اور اثر مزاحم مواد سے بنا ہے۔
ہماری مصنوعات گرم ، شہوت انگیز ڈپ جستی ہے ، جس میں بہترین سنکنرن مزاحمت ، کم لاگت اور طویل خدمت کی زندگی کی پیش کش کی جاتی ہے۔ 1.5-2.5 ملی میٹر کی موٹائی میں دستیاب ہے ، یہ زیادہ تر ایپلی کیشنز کے لئے موزوں ہے۔
سٹینلیس سٹیل سے بنا ، یہ مصنوع سنکنرن مزاحمت کی پیش کش کرتا ہے اور خاص طور پر ساحلی یا مرطوب ماحول کے لئے موزوں ہے۔ 1.0-2.0 ملی میٹر کی موٹائی میں دستیاب ہے ، یہ زیادہ قیمت لیکن طویل خدمت کی زندگی کی پیش کش کرتا ہے۔
اسٹیل ڈھانچے کے گٹر عمارت کے چھت کے نکاسی آب کے نظام کا ایک اہم جزو ہیں۔ ان کا بنیادی کام چھت سے بارش کا پانی جمع کرنا ، اسے عمودی پائپوں میں بھیجنا ، اور پھر اسے بیرونی نکاسی آب کے نظام میں خارج کرنا ہے ، جس سے اسے براہ راست دیواروں کو ختم کرنے یا بھگونے والی بنیادوں سے روکتا ہے۔ لیویوان کے مصنوع کے ڈیزائن اور تنصیب کی خصوصیات اعلی طاقت اور ہلکے وزن کی طرف سے ہوتی ہے ، جو ہموار نکاسی آب اور غیر معمولی استحکام کو یقینی بناتی ہے۔
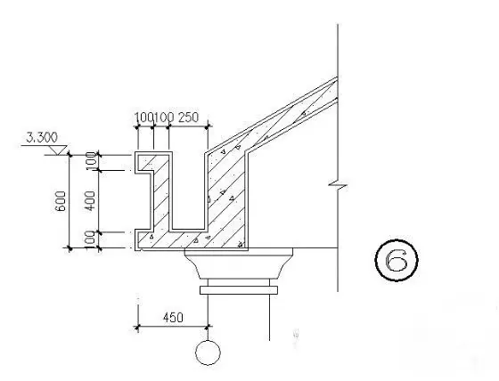
اسٹیل ڈھانچے کے گٹر کی ساختی شکل کو چھت کی ڈھلوان اور ایواس ڈیزائن کے مطابق ڈھالنے کی ضرورت ہے۔ عام اقسام میں U کے سائز کا اور V سائز شامل ہے۔ تنصیب کا عمل مندرجہ ذیل ہے:
ہمارے اسٹیل ڈھانچے کے گٹر زاویہ اسٹیل گٹر بریکٹ کا استعمال کرتے ہیں تاکہ انہیں اسٹیل ڈھانچے کے ایواز بیم یا پورلنز تک محفوظ رکھیں۔ گٹر میں تناؤ کی تقسیم کو یقینی بنانے کے لئے بریکٹ وقفہ 600-1000 ملی میٹر ہے۔
تیار شدہ گٹر کنیکٹر یا ویلڈنگ کا استعمال کرتے ہوئے پری سائز اور سائٹ پر منسلک ہوتے ہیں۔ گٹر اور چھت کی سجاوٹ کے درمیان جنکشن پر سیلانٹ کی ضرورت ہے۔
ہم چھت کی سجاوٹ کے اوپر چمکتی ہوئی انسٹال کرسکتے ہیں۔ گٹر کے نچلے سرے کو چھت کی سجاوٹ کے نیچے رکھنا چاہئے اور سیلانٹ کے ساتھ مہر لگانا چاہئے۔ بنیادی طور پر بارش کے پانی کو بڑھانے والے سے تعلق کے ل gr گٹر کے نچلے حصے میں ڈرین کے سوراخ فراہم کیے جائیں۔
ہمارے اسٹیل ڈھانچے کے گٹروں کی تیاری کے عمل میں ڈرائنگ کے طول و عرض کے مطابق کاٹنے ، موڑنے ، پینٹنگ ، تیار شدہ مصنوعات کا معائنہ ، پیکیجنگ اور شپنگ شامل ہے۔ لیویوان کے اسٹیل ڈھانچے کے گٹروں کو سنکنرن مزاحمت ، ہموار نکاسی آب اور استحکام کو یقینی بنانے کے لئے ڈیزائن اور انسٹال کیا گیا ہے ، جس سے موثر نکاسی آب کو یقینی بناتے ہوئے۔